In den Leibnizgärten…

ID: 1704
Ortsangaben
Ort
32425 Minden
Adresse
Leibnizstraße 6c
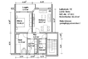
Flächen
Wohnfläche
ca. 66,68 m²
Anzahl Zimmer
3
Preisangaben
Kaltmiete (netto)
725 €
Warmmiete
869 €
Nebenkosten
170 €
Heizkosten
in Nebenkosten enthalten
Heizkosten
40 €
Bezugsfrei ab
01.11.2025
Kaution
2.175 €
Zustandsangaben
Baujahr
1962
Gebäudetyp
Neubau

Ausstattung

Tolle Wohnung mit super Ausstattung...

* hochwertiger Laminatboden
* das Badezimmer ist mit Duschbadewanne und Fenster ausgestattet
* ein zusätzlicher Kellerraum ist verfügbar
* zudem ist diese Wohnung mit einem Wasserzähler ausgestattet, die den Verbrauch gerecht unter den Mietern verteilt

Ein Südbalkon, auf dem man die Sonne genießen kann, rundet die Qualität der Wohnung ab.

Angucken und einziehen was will man mehr.....

Kunststoff
Ja
Garten
Ja
Keller
Ja

Objektbeschreibung

Im Jahr 2014 wurde das Haus komplett wärmegedämmt und mit neuen Fenstern ausgestattet. Die innovative Farbgestaltung rundet die hochwertige Sanierung ab.

In unmittelbarer Nähe befinden sich ausreichend Stellplätze für PKWs.

Es besteht die Möglichkeit einen mietereigenen Parkplatz auf dem neu geschaffenen Parkplatz (mit Schranke) anzumieten.

Energie & Heizung

Energie­ausweistypBedarfsausweis
Endenergiebedarf81,70 kWh/(m²·a)
HeizungsartEtagenheizung
EnergieträgerGas

Weitere Beschreibung

Baujahr: 1962
Heizungsart: Etagenheizung
Befeuerung/Energieträger: Erdgas leicht
Energieausweistyp: Bedarfsausweis
Energiekennwert: 81,7 kWh/(m²*a)
Energieeffizienzklasse: C

Wir bieten Ihnen zusätzlich:
- Hausmeisterservice
- Unser Notdienst: Erreichbarkeit 365 Tage im Jahr, rund um die Uhr! Auf uns können Sie zählen!

Die Kaution beträgt 3 Nettokaltmieten.
Tierhaltung ist nach Absprache gestattet.

Ein Besichtigungstermin kann individuell unter (0571) 8885 511 vereinbart werden - oder Sie besuchen uns in unseren Geschäftsräumen in der Hahler Str. 34, 32427 Minden - setzen Sie sich auch gerne wegen weiterer Angebote mit uns in Verbindung!
Unsere Geschäftszeiten sind täglich von 10-12:30/13:30-18 Uhr, freitags von 10-14 Uhr und samstags nach Absprache

Unsere aktuellen Angebote finden Sie auch unter www.Wohnhaus-Minden.de
Klicken Sie mal rein!

Your browser doesn't have a PDF plugin installed. Click here to download the PDF file.

Vermietungshotline

Montag – Donnerstag:
– 10.00 – 12.30 Uhr
– 13.30 – 18.00 Uhr
Freitag: 10.00 – 14.00 Uhr
Termine auch außerhalb der Öffnungszeiten nach Vereinbarung

Lage

Dieses großzügige Mehrfamilienhaus befindet sich in einer liebevoll angelegten Grünanlage.
Vor Ort befindet sich eine gute Anbindung an das öffentliche Verkehrsnetz und das Zentrum ist ebenfalls bequem mit dem Fahrrad zu erreichen.

**Schulen, Einkaufsmöglichkeiten und Kindergärten sind fußläufig erreichbar - ideal für Familien! Der nächste Kindergarten befindet sich beispielsweise in der Vorlaenderstraße

**Eine Bushaltestelle befindet sich direkt vor dem Haus