Viel Platz für die kleine Familie

ID: 2230
Ortsangaben
Ort
32425 Minden
Adresse
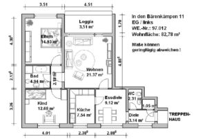
In den Bärenkämpen 11
Flächen
Wohnfläche
ca. 82,78 m²
Anzahl Zimmer
3
Preisangaben
Kaltmiete (netto)
599 €
Warmmiete
774 €
Nebenkosten
175 €
Heizkosten
in Nebenkosten enthalten
Heizkosten
50 €
Bezugsfrei ab
01.03.2025
Kaution
1.134 €
Zustandsangaben
Baujahr
1982
Gebäudetyp
Neubau

Ausstattung

Diese tolle und geräumige 3-Zimmer-Wohnung mit ca. 83m² mit riesiger LOGGIA befindet sich im...:

- Erdgeschoss
- in einem sehr gepflegten und ruhigen Haus
- Badewanne, Dusche sowie ein Waschmaschinenanschluss befindet sich im Badezimmer
- sep. Gäste-WC ist vorhanden
- Abstellraum innerhalb der Wohnung

Und jetzt ab zum nächsten Telefon und anrufen: 0571-888534

Kunststoff
Ja
Garten
Ja
Rollstuhlgerecht
Ja
Keller
Ja

Objektbeschreibung

Die Wohnung befindet sich im 2.Obergeschoss und verfügt über einen großen Südbalkon, welcher erholsame Sonnenstunden garantiert.
Zur Anmietung benötigen Sie einen Wohnberechtigungsschein, den Sie bei der Stadt Minden beantragen können.
Ein großer Parkplatz direkt vor der Tür bietet genügend Platz für Ihr Auto.
Das Haus verfügt über eine Zentralheizung. Diese wird regelmäßig gewartet und sorgt für eine zuverlässige und effiziente Beheizung der Wohnungen.

Achtung: Für diese Wohnung wird ein Wohnberechtigungsschein benötigt!

Energie & Heizung

Energie­ausweistypBedarfsausweis
Endenergiebedarf198,5 kWh/(m²·a)
HeizungsartZentralheizung
EnergieträgerGas

Weitere Beschreibung

Energiekennwert: 198,50 kWh/(m²*a)
Befeuerung/Energieträger: Erdgas leicht
Energieausweistyp: Bedarfsausweis
Baujahr: 1982
Heizungsart: Zentralheizung

Wir bieten Ihnen zusätzlich:
- Hausmeisterservice
- Unser Notdienst: Erreichbarkeit 365 Tage im Jahr, rund um die Uhr! Auf uns können Sie zählen!
- Optional: Stellplatz 29 EUR mit Bügel oder hinter Schranke für 39 EUR
- Kellerraum für 25 EUR monatlich

Die Kaution beträgt 3 Nettokaltmieten.
Tierhaltung ist nach Absprache gestattet.

Ein Besichtigungstermin kann individuell unter (0571) 8885 595 vereinbart werden - oder Sie besuchen uns in unseren Geschäftsräumen in der Hahler Str. 34, 32427 Minden - setzen Sie sich auch gerne wegen weiterer Angebote mit uns in Verbindung!
Unsere Geschäftszeiten sind täglich von 10-12:30 /13:30-18 Uhr, freitags von 10-14 Uhr

Unsere aktuellen Angebote finden Sie auch unter www.Wohnhaus-Minden.de
Klicken Sie mal rein

Your browser doesn't have a PDF plugin installed. Click here to download the PDF file.

Vermietungshotline

Montag – Donnerstag:
– 10.00 – 12.30 Uhr
– 13.30 – 18.00 Uhr
Freitag: 10.00 – 14.00 Uhr
Termine auch außerhalb der Öffnungszeiten nach Vereinbarung

Lage

Dieses großzügige Mehrfamilienhaus befindet sich in einer liebevoll angelegten Grünanlage.
Vor Ort befindet sich eine gute Anbindung an das öffentliche Verkehrsnetz und das Zentrum ist ebenfalls bequem mit dem Fahrrad zu erreichen.

Im Norden der Stadt - Nahe des Melittabads, befindet sich diese Wohnung.
Ein Auto brauchen Sie hier definitiv nicht!
Schulen und Kindergärten befinden sich um die Ecke - auch Einkaufsmöglichkeiten sind fußläufig zu erreichen - ideal für Familien!

- der nächste Supermarkt ist ca. 200m entfernt
- ein Kindergarten befindet sich nur eine Straße weiter
- ein Cafe befindet sich ca. 150m entfernt
- eine Bushaltestelle befindet sich direkt vor der Tür
- Innenstadt nur ca. 3km entfernt!

Was braucht man mehr!